Rustico in vendita

Pavia Di Udine, Via del Molino - Lauzacco
€ 90.000
6 locali 6 locali
100 Mq 100 Mq
2 bagni 2 bagni

Rustico in vendita

Pavia Di Udine, Via del Molino - Lauzacco

Descrizione annuncio

La casa si trova in una zona molto tranquilla del paese di Lauzacco, immersa nella campagna che si rivolge verso la frazione di Selvuzzis.

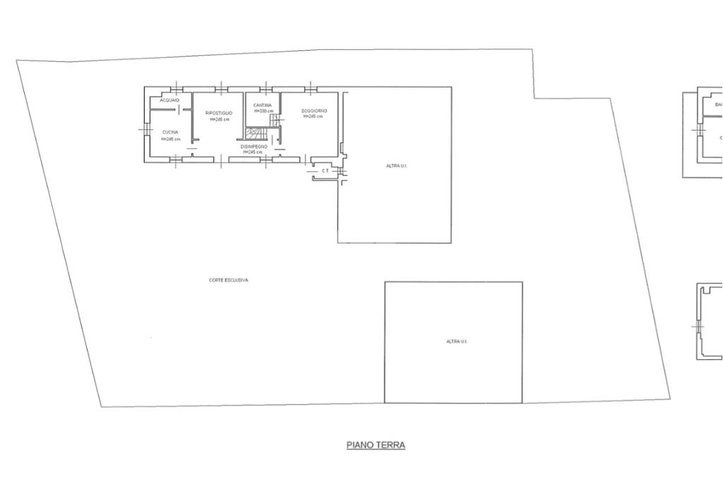
L'immobile è indipendente e la proprietà è completata da due importanti pertinenze disposte su due livelli per un totale di 400 mq circa di superficie accessoria. La strada che permette l'accesso alla proprietà è una strada chiusa che consente il passaggio per questa proprietà e soltanto altre due abitazioni.

Il cancello di accesso è sia pedonale che carraio. Il lotto totale è di 1.300 mq circa e comprende oltre alla casa anche una vecchia stalla su due livelli e un capannone, un ex pollaio con altre piccole pertinenze.

La casa principale si sviluppa su due piani oltre alla sofitta di quasi 85 mq. Il piano terra si compone di tre ampi stanzoni con un bagno e una cantina seminterrata; al primo piano sono presenti tre camere matrimoniali, due di quasi 15 mq e una di 20 mq circa, un bagno e un ripostiglio, utilizzabile anche come quarta camera, con porta finestra che consente l'uscita su una terrazza che copre due lati dell'abitazione. Da questa stanza è poi possibile accedere alle scale che conducono alla soffita.

Tutta la proprietà necessita di lavori di ristrutturazione dai pavimenti, agli impianti, al tetto e ai serramenti, questo permette una totale personalizzazione dell'immobile potendo sfruttare le sue generose metrature.

Questa abitazione rappresenta un'ottima soluzione per chi cerca una buona indipendenza, vicina alla natura e necessita anche di spazi extra per ricovero materiali, attrezzi ed eventuali mezzi di lavoro.

Mostra tutto

Nelle vicinanze

Trasporto pubblico Trasporto pubblico
Lauzacco via Persereano
Lauzacco via Persereano
360 m
Lauzacco piazza Julia
Lauzacco piazza Julia
440 m
Ricariche auto elettriche Ricariche auto elettriche
Municipio di PAVIA DI UDINE | ENELX
460 m
Municipio di Pavia di Udine
460 m
Pavia di Udine | ENELX
2,5 Km
Risano Chiasottis | ENELX
2,6 Km
Scuole Scuole
Scuole
700 m
Scuola Secondaria di Primo Grado Caterina Percoto - Lauzacco
700 m
Asilo Nido Piccoli Passi
1,8 Km
Farmacia Farmacia
Caruso Caccia S.N.C
2,2 Km
Pancino
2,6 Km
Supermercati Supermercati
Supermercati
540 m
Eurospin
890 m
Negozi Negozi
Negozi
890 m
Bar Bar
Gigio's
890 m
Bar Sport
2,6 Km
Bar
3,0 Km
Ristoranti Ristoranti
Ristorante pizzeria "Lili Marleen"
830 m
LE OCHE SELVATICHE
840 m
Trattoria "La Frasca"
990 m
Agriturismo Al Gelso
1,4 Km
All'Invidia
2,3 Km
Mostra tutto

Caratteristiche

Rif.:
61172512
Piano:
3 di 3 (Piano su più livelli)
Box:
1
Posti auto:
1
Balconi:
1
Camere da letto:
4
Mostra tutto
Prezzo Prezzo
€ 90.000
Rata mutuo Rata mutuo
€ 427 / mese
Proponi il tuo prezzoProponi il tuo prezzo
Immobile valutato con T·Valuta

Classe Energetica

G
G
G
G
G
G
G
G
G
EP globale non rinnovabile:
448.16 kW h/m² anno
EP globale rinnovabile:
1.79 kW h/m² anno
EP invernale del fabbricato:
EP estiva del fabbricato:
Anno di costruzione:
1900
Riscaldamento:
Autonomo
Tipo impianto:
A radiatori
Tipo alimentazione:
Metano

Ti interessa visionare l'immobile?

Fissa un appuntamento  Fissa un appuntamento

Richiedi informazioni

Clicca su Leggi per aprire l'informativa
* Questi campi sono obbligatori

Calcola il tuo mutuo

Semplice e senza impegno
Anticipo

( % )
Mutuo

( % )

pochi semplici passi

inserisci i tuoi dati
Questionario completato
Grazie per aver richiesto un appuntamento senza impegno con un nostro Consulente del Credito e Assicurativo.

Hai inserito correttamente tutti i dati necessari e a breve riceverai una e-mail con un link da convalidare per inviare i tuoi dati.
Affiliato
Studio Petrelia D.I.
Via Villa, 3 33050 Pavia Di Udine (UD)
Via Villa, 3 33050 Pavia Di Udine (UD)
Zona: Pavia di Udine-Mortegliano-Pozzuolo del Friuli
Mostra su mappa
Orari: Orari: dal Lunedì al Venerdì dalle 9.00 alle 13.00 e dalle 15.00 alle 19.30. Sabato dalle 9.00 alle 12.30.
Affiliato
Studio Petrelia D.I.
Via Villa, 3 33050 Pavia Di Udine (UD)

2026 Tecnocasa Franchising S.p.A. - P. IVA 08365160152 - Via Monte Bianco 60/A 20089 Rozzano (MI). Ogni agenzia ha un proprio titolare ed è autonoma. Privacy policy | Policy utilizzo | Cookie policy